Ansvarig Mäklare Johan Franzon
070-445 51 80
Familjevilla från 2004 i högt läge med tilltagen terrass i tvåplan med eftermiddag/kvällssol. Stillsamt belägen på barnvänlig återvändsgata invid Insjön. Ett trivsamt boende som erbjuder generösa sällskapsytor och upp till fyra sovrum. Promenadavstånd till bad, båtplats och direktbussar mot Slussen.
Lagnövägen 13-61
Lagnövägen 13-45
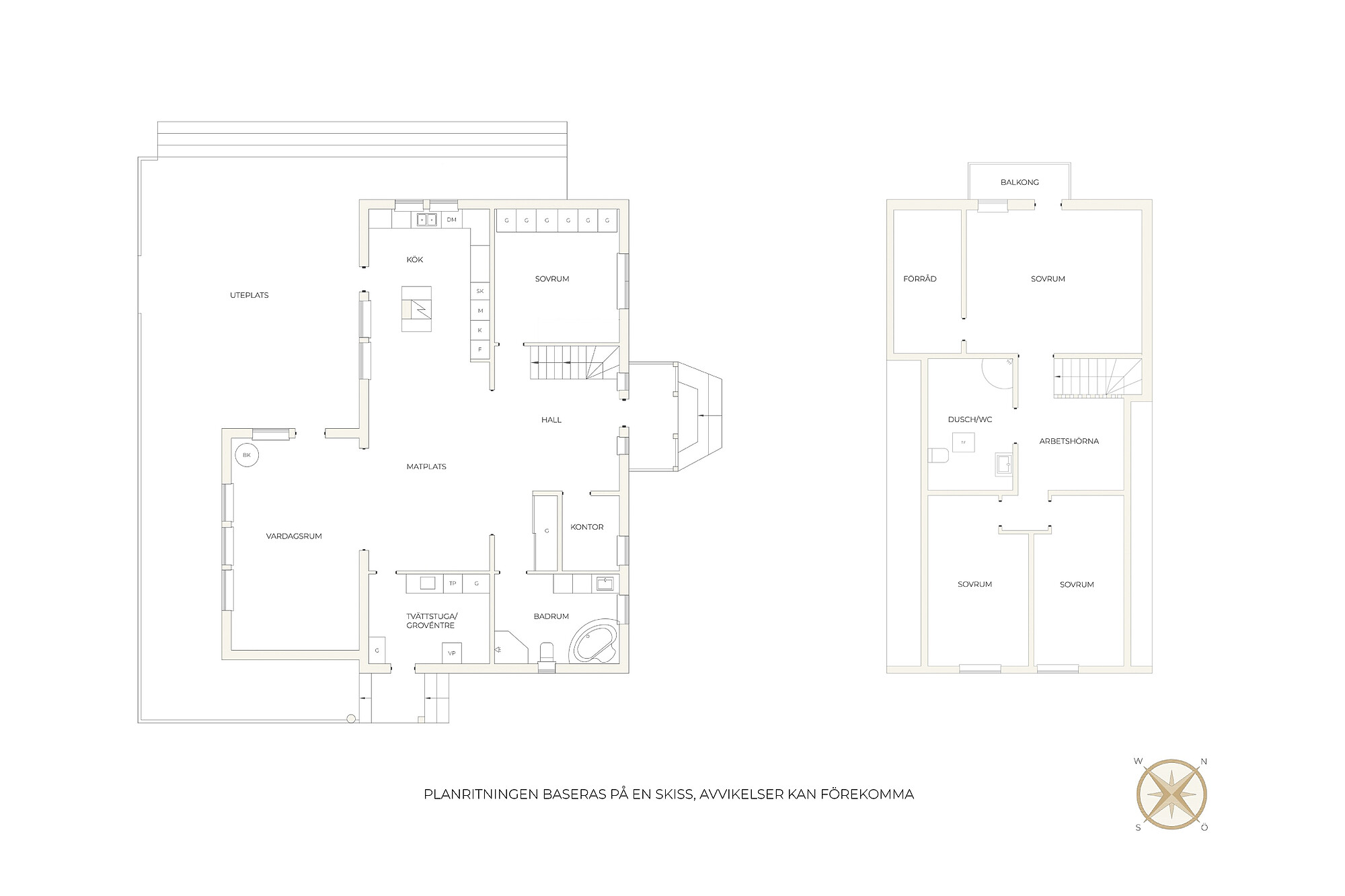
Planskiss
Fakta
Fastighets­beteckning
NACKA KIL 2:143
Upplåtelse­form
Friköpt - Småhus
Tomtarea
1374 kvm
Boarea
178 kvm, 178 kvm avser bostadsyta enligt fastighetsregistret. Till/ombyggnadsyta är 56 kvm.
Byggnadsår
2004
Byggnadstyp
1 1/2 plansvilla med fristående garage
Uppvärmning
Frånluftsvärmepump/braskamin/ direktverkande el
Ventilation och kyla
Mekanisk frånluft
Fönster
3-glas
Fasad
Trä
Tak
Betongpannor
Bjälklag
Trä
Stomme
Trä
Grundläggning
Kryprumsgrund
Vatten och avlopp
Kommunalt vatten året om. Kommunalt avlopp.
Eldstad
Braskamin
Fastigheten besiktigad
2021-10-25
Taxeringsvärde byggnad
3.534.000kr
Taxeringsvärde tomt
2.636.000kr
Taxeringsvärde totalt
6.170.000kr
Pantbrev
6st / 5.525.000
Driftkostnad
Värme
701 kr/mån
El
1 012 kr/mån
Vatten/Avlopp
504 kr/mån
Renhållning
400 kr/mån
Försäkring
896 kr/mån
Övrigt
1 059 kr/mån
Total driftkostnad
4 589 kr/mån
Energideklaration
Status
Utförd, 2021-10-26
Energideklaration
134 kWh per kvm/år

INTERIÖR

HALL | Entré till hall med praktiskt klinkergolv och bra förvaring via flera garderober.

VARDAGSRUM / KÖK Ljusa och luftiga sällskapsytor där stor matplats knyter samman kök och vardagsrum i en härlig öppen plan. Generösa fönsterpartier i sydväst ger fantastiskt ljusinsläpp. Från vardagsrum och kök nås stor uteplats med eftermiddag/kvällssol. Kök med trevlig köksö och maskinell utrustning bestående av häll, ugn, kyl/frys i fullhöjd, frånluftsfläkt och inbyggd mikro. Vardagsrum med effektiv och trevlig braskamin från Contura. Rummet ger plats för stor soffgrupp och tv-möbel. 

SOVRUM | I anslutning till hall nås stort sovrum med bra förvaring via garderobsvägg. 

KONTOR | Mindre rum i anslutning till hall som lämpar sig väl som kontor. 

BADRUM |  Klinkergolv och kaklade väggar erbjuder både dusch och badmöjligheter. Utrustat med wc, tvättställ med förvaringsmöbel, badkar och dusch. 

TVÄTTSTUGA/GROVENTRÉ | Praktiskt tvättstuga med groventré och husets frånluftsvärmepump. Tvättmöjligheter via tvättmaskin och torktumlare. 

ÖVRE PLAN

SOVRUM | På övre plan erbjuds tre sovrum. Master bedroom med plats för dubbelsäng, bra förvaring och balkong. Två sovrum lämpar sig väl som barnrum/gästrum. Allrum ger plats för mindre soffa och/eller arbetsplats.  

DUSCHRUM | Badrum med duschkabin, wc, tvättställ och takfönster. Kaklade väggar och klinkergolv. 

 

EXTERIÖR

GARAGE | Fristående garage med intilliggande förråd. Uppfart ger plats för två bilar. 

TRÄDGÅRD | Gemytlig framsida med planteringar, träd och stenlagda ytor med plats för utegrupp. I anslutning till altan finns plan gräsmatta. Baksida med sluttande bergsknallar och träd ringas in av staket.  

UTEPLATS | Tilltagen trädäckad altan i två nivåer varav den övre nås från kök, vardagsrum och groventré. Altanen sträcker sig runt husets baksida och erbjuder generöst med soltimmar samt flera möjligheter för möblemang. År 2020 tillfördes utomhusspa. "Lower deck" är beläget invid damm och natursköna bergsknallar. Dammen är anlagd med pump och rymmer Karpar och Kräftor. 

OMRÅDET | Insjön är en härlig villaidyll nära såväl bad i Insjön som i Östersjön. Via busslinje 425, ett par minuter från bostaden, tar man sig via direktbuss till Slussen på cirka 15-20 minuter. Velamsund naturreservat erbjuder trevliga strövområden, ridskola, bad, restaurang Långa och båthamn. En kort biltur ger tillgång till flera köpcentrum och service.

 

BYGGNADSINFORMATION

Huset uppfördes 2004 och övre plan inreddes 2008 av första ägaren. 

2021 Laserat altanen. Ommålning av köksluckor. Byte av missfärgat golv under kylskåp. 
2020 Anläggning av gräsmatta framför garage. Markplattor framför garage. Utbyggnad av altan med spabad. 
2019 Staket på baksida
2018/2019 Ny värmepump
2018 Laserat om/målat om altanen. Delat av master bedroom med vägg, ommålning.
2017 Nytt filter till dammen

Renoveringar och förbättringar utförda av föregående ägare, information från när säljarna köpte:
2014 Lasering av trädäck, balkong och förstukvist.
2014 Ommålning av fasader åt norr, söder och väster.
2013 Ommålning av fasad åt öster. Ommålning av vita partier utvändigt.
2013 Tvätt och inoljning av terrass, balkong och förstukvist.
2012 Målning av staket. Tvätt och inoljning av terrass, balkong och förstukvist.
2011 Glaspartier på terrassräcket. LED-belysning i terrassen, runt hus och damm.
2011 Tvätt och inoljning av terrass, balkong och förstukvist.
2010 Ny dammpump. Ommålning av garage. Tvätt och inoljning av terrass, balkong och förstukvist.
2010 Flaggstång, ny kyl/frys.
2009 Installation av braskamin, Contura. Invändig målning av garage. Ommålning av samtliga väggar invändigt i huset. 

TV, BREDBAND OCH TELEFONI | Öppet fiber är indraget i huset vilket gör att man fritt kan välja leverantör av bredband, tv och telefoni. 

UPPVÄRMING OCH VENTILATION | Uppvärmning i huvudsak via frånluftsvärmepump F730 från Nibe, installerad 2018/2019. I vardagsrum finns braskamin från Contura. På entréplan är radiatorer vattenburna och på övre plan oljefyllda elradiatorer. Mekanisk frånluft med återvinning.

BESIKTNING | Fastigheten är förbesiktigad. Besiktningen utfördes 2021-10-25 och protokoll finns tillgängligt hos mäklaren. Protokollet är en viktig del i de överväganden en köpare ska göra. 

TAXERINGSINFORMATION

SMÅHUSENHET, HELÅRSBOSTAD FÖR 1-2 FAMILJER (220)
Byggnad, totalt värde: 3 534 000 kr
Mark, totalt värde: 2 636 000 kr
Summavärde: 6 170 000 kr

Taxeringsår: 2021
Byggår: 2004
Värdeår: 2005

ÖVRIGA KOSTNADER

LAGFARTSKOSTNAD | 1.5 % av köpeskilling + exp. avgift för fysisk person.

PANTRBREVSKOSTNAD | 2 % av pantbrevsbeloppet på uttag av nya pantbrev + exp. avgift.

FASTIGHETSAVGIFT | Fastighetsavgiften fn 8 524 kr/år. Regleras i slutlig avräkning mellan köpare och säljare. 

 

JURIDISK INFORMATION

UNDERSÖKNINGSPLIKT | Köparen uppmanas att undersöka fastigheten före köpet. Säljaren ansvarar normalt inte för sådana fel som köparen borde ha upptäckt vid undersökningen. Om det finns symptom på fel som köparen inte själv kan dra några slutsatser av, måste hen gå vidare med sin undersökning och om så krävs anlita en sakkunnig för att fullgöra sin undersökningsplikt. De uppgifter säljaren lämnar påverkar undersökningspliktens omfattning. Om säljaren exempelvis upplyser köparen om ett misstänkt fel kan det utgöra en varningssignal som bör leda till en mer ingående undersökning från köparens sida. Köparen bör slutligen tänka på att säljaren inte svarar för fel och brister som köparen borde ha räknat med eller borde ha förväntat sig med hänsyn till ålder, skick och förväntad ”livslängd”. 

Mer information gällande bland annat undersökningsplikt finns att tillgå i dokumentet: 

”Information om undersökningsplikt - fastighet”

BUDGIVNING | Säljaren har fri prövningsrätt vilket innebär att säljaren bestämmer till vem hen vill sälja, när och till vilket pris. Säljaren bestämmer hur budgivningen ska gå till och hur den ska avslutas. Det innebär att säljaren inte nödvändigtvis behöver sälja till den som lämnat det högsta budet eller sälja alls. Mäklaren har en skyldighet att vidarebefordra samtliga bud till sin uppdragsgivare och föra en budförteckning över alla bud. Först när både säljaren och köparen har undertecknat ett köpekontrakt för bostaden blir köpet bindande.

Budförteckning överlämnas till köpare och säljare när mäklarens uppdrag är avslutat, normalt vid tillträdet. 

FAST OCH LÖS EGENDOM | I jordabalken finns bestämmelser och exempel på vad som är fast egendom och vad som är tillbehör till fastighet och byggnad och därmed ingår i den fasta egendomen. Allt annat som inte omfattas av reglerna om den fasta egendomen och tillbehören till denna är att betrakta som lös egendom.

I samband med fastighetsöverlåtelser får köpare och säljare ofta anledning att fundera över dessa frågor. Om tveksamhet skulle uppstå får vi rekommendera att skriftlig överenskommelse träffas, som reglerar vadsäljaren avser att ta med sig från fastigheten.

Mer information att tillgå i dokumentet:

”Fast och lös egendom” samt på http://fmf.se/fast-och-los-egendom/

MÄKLARENS ANSVAR | Mäklaren är skyldig att verka som en opartisk mellanhand mellan köpare och säljare. Mäklaren ska verka för att säljaren lämnar köparen de uppgifter som är av betydelse för hen samt verka för att köparen före köpet undersöker fastigheten. Mäklaren har normalt inte ansvar för att kontrollera fastigheten och inte heller om säljarens uppgifter är korrekta. 

För ytterligare information, besök Fastighetsmäklarinspektionens hemsida:

http://www.fmi.se/konsument

SIDOTJÄNSTER | Mäklaren är, enligt Fastighetsmäklarlagen, skyldig att informera om sina eventuella sidotjänster där mäklaren/företaget får ersättning/provision. Franzon Du Rietz erhåller administrationsersättning, upp till 50% av uppdragsvigarens kostnad för annons på Hemnet. 

close-interestform

    Anmäl ditt intresse för Lagnövägen 13
    close-interestform

      Anmälan till visning Lagnövägen 13