 
   
       
       
       
       
       
       
       
       
      - Pris
- 10.800.000 kr/bud
- Avgift
- 5.179 kr/mån
- Ingår i avgift
- Värme, Vatten
- Storlek
- 89 kvm, enl. mätbevis. Föreningen uppger "area 86 m2".
- Antal rum
- 3
- Våningsplan
- 4 tr, hiss finns
- Lägenhetsnummer
- 00017/1402
- Andelstal i förening
- 9.83657 %
- Andelstal av avgift
- 4.36388 %
- Balkong
- Kungsbalkong om ca 10 kvm
- Förråd
- Vindsförråd och källarförråd
- Hushållström
- 400 kr/mån
- Försäkring
- 300 kr/mån
- Övrigt
- 159 kr/mån
- Total driftkostnad
- 859 kr/mån
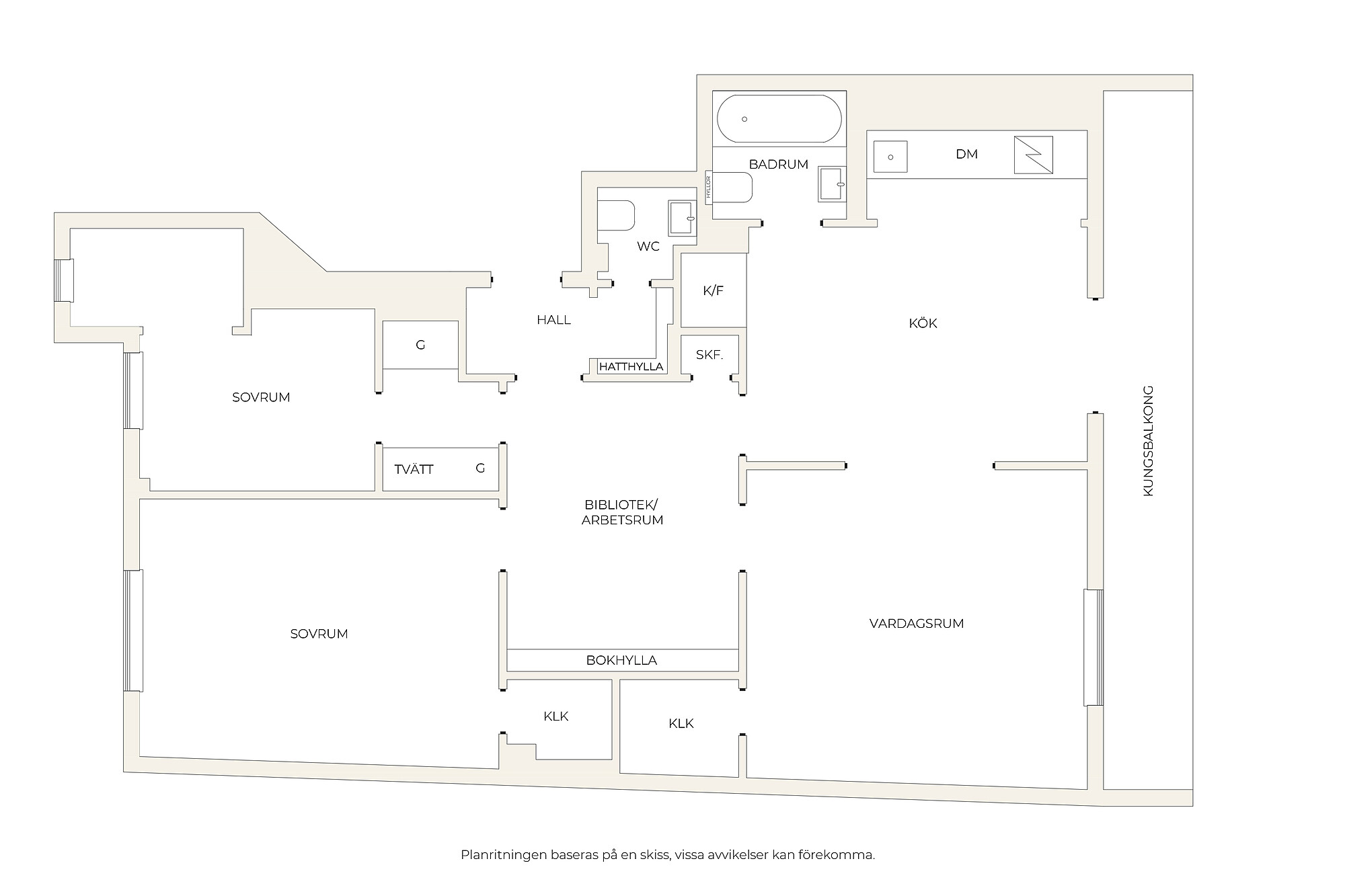
HALL | Prydligt trapphus med hiss och entré med säkerhetsdörr leder till hallen. Här finns gott om plats för avhängning av ytterkläder och skor.
INRE HALL/BIBLIOTEK/ARBETSRUM | Inbjudande rum som idag nyttjas som ett trivsamt arbetsrum/bibliotek. Härifrån nås lägenhetens samtliga rum.
KÖK | Arkitektritat kök med utrymme för stora middagsbjudningar och utgång till kungsbalkongen. Goda arbetsytor på bänk i rostfritt stål och förvaring bakom rostfria fronter samt inbyggda överskåp. Den maskinella utrustningen består av induktionshäll, kolfilterfläkt, ugn, diskmaskin och kyl/frys.
KUNGSBALKONG | Fantastisk kungsbalkong om ca 10 kvm i syd/sydost-läge med sol hela dagen. Här finns plats för utemöbler, grill och växter. Som ett extra rum under sommarhalvåret.
VARDAGSRUM | I fil med köket med avgränsande pardörrar finns vardagsrummet. Inbjudande och lättmöblerat med plats för soffgrupp samt övrig möblering. I bakkant av rummet finns en bra förvaringsutrumme.
SOVRUM 1 | Lägenhetens större sovrum med utrymme för dubbelsäng och sängbord mm. God förvaring i klädkammare och plats för ytterligare garderober för den som önskar.
SOVRUM 2 | inbjudande rum med två fönster. Perfekt plats för säng i alkov och utrymme för ytterligare möblering.
PASSAGE/TVÄTT | I passagen mellan hallen och den andra sovrummet finns platsbyggda garderober med inbyggd tvättmaskin.
BADRUM | Smakfullt renoverat badrum med inkaklat badkar, vägghängd wc, handfat, spegel och inbyggda hyllor.
GÄST-WC | I anslutning till hallen finns en separat gäst-wc med handfat.
- Förening
- Brf Bergslagen 4
- Äkta förening
- Ja
- Upplåtelseform
- Bostadsrätt - Lägenhet
- Byggår
- 1927
- Äger marken
- Ja
- Energideklaration
- 163 kWh per kvm/år
- Status
- Utförd, 2019-10-01
- Tv/Internet
- Tele2 / Ownit
Brf Bergslagen 4 registrerades 1933 och förvärvade fastigheten 1938 med adress Kammakargatan 64, Adolf Fredriks församling i Stockholm. Fastigheten är bebyggd med ett vackert hus uppfört 1927. Föreningen är en äkta bostadsrättsförening med god ekonomi och man äger marken. Juridisk person accepteras inte som köpare.
ANTAL BOSTADSRÄTTER | Huset består av 1 694 kvm bostadsyta fördelat på 38 lägenheter upplåtna med bostadsrätt.
ÖVERLÅTELSE- OCH PANTSÄTTNINGSAVGIFT | Överlåtelseavgift om 1 433 kr betalas av köparen och pantsättningsavgift om 573 kr av pantsättaren.
ÅRSAVGIFT | 5 179 kr/mån. Betalas månadsvis i förskott. I avgiften ingår värme, vatten. Obligatoriskt tillägg för bredband/fiber via Ownit tillkommer med 159 kr/mån. Föreningen har beslutat att höja avgiften med 15 % per den 2024-02-01 och det är den nya avgiften som redovisas i annonsen. Man har diskuterat en höjning 2025 men inga beslut är tagna.
KABEL-TV OCH BREDBAND | TV levereras av Comhem och fiber via Ownit.
EKONOMI | Föreningen är välskött med god ekonomi och ca 5,7 mkr i långfristiga skulder, ca 3 365 kr/kvm. Man har ca 1 mkr i likvida medel. Uppgifter enligt styrelsen 2024-01-09.
VIND / DOLD TILLGÅNG | Råvind med förråd och god potential till inredning av bostad. Över aktuell finns en outnyttjad yta för den som vill undersöka möjligheterna att utöka aktuell lägenhet.
Indirekt nettoskuldsättning: Cirka 198 060 kr
Bostadsrättens indirekta nettoskuldsättning baseras på föreningens skulder/lån minus föreningens räntebärande tillgångar och likvida medel. Beräkningen är gjord och baseras enbart på den senaste tillgängliga årsredovisningen (2022). För mer information kontakta ansvarig fastighetsmäklare.
PARKERING | Boendeparkering på gatan via Stockholm stad. 
GEMENSAMMA UTRYMMEN
- Prydlig och grönskande innergård med utegrupper och grill. Cykellställ.
- Tvättstuga i källaren.
BYGGNADSSTATUS |
 2023: Omdragning av el till innergården
2022: Montering av trätrappa på gården till uteplats.
2021: Byte slussventil. Stamspolning. Installering av innerdörrar i hissar.
2020: OVK-besiktning.
2019: Byte av avloppsstammar i källaren. Målning av fönster mot Kammakargatan.
2018: Genomgång av brandsäkerhet med åtgärder.
2017: Målning av fönster mot Kammakargatan. Spolning av stammar. Installation av säkerhetsdörrar. Målning av entréparti. Injustering av värmesystem.
2016: Spolning av brunnar på gården.
2014: OVK-besiktning. Intrimning av värmesystem. Installation av radiatorventiler. Nya kallvattenrör i källaren.
2013: Byte av värmeledningar i samband med asbestsanering i källarplan.
2012: Renovering av gårdsbelysning samt installation av husnod för fibernät. Byte av undercentral för fjärrvärme.
2010: Fönster mot gården renoverades.
2009: Fasad mot gata samt innergården renoverades.
2008: Taket rengjordes och målades. Stamspolning (underhåll).
2007: Fönster mot gatan målades samt tätades.
2006: Helrenovering av gården.
2004-2005: Alla elstigar byttes (trefas i varje lägenhet).
2002: Balkonger.
2001: Trappuppgången renoverades. Båda hissarna renoverades.
2000: Torkskåp.
1997-1998: Stambyte.
1994: Tvättmaskin, torktumlare.
KOMMANDE RENOVERINGAR 2024 | 
Målning av fönster och balkongräcken mot gården. Vid behov renovering och målning av kungsbalkonger. Relining av avlopp under trottoar
FÖRENINGENS HEMSIDA | För ytterligare information, besök föreningens hemsida: www.bergslagen4.se
JURIDISK INFORMATIONUNDERSÖKNINGSPLIKT | Köparen uppmanas att undersöka bostadsrätten före köpet. Säljaren ansvarar normalt inte för sådana fel som köparen borde ha upptäckt vid undersökningen. Om det finns symptom på fel som köparen inte själv kan dra några slutsatser av, måste hen gå vidare med sin undersökning och om så krävs anlita en sakkunnig för att fullgöra sin undersökningsplikt. De uppgifter säljaren lämnar påverkar undersökningspliktens omfattning. Om säljaren exempelvis upplyser köparen om ett misstänkt fel kan det utgöra en varningssignal som bör leda till en mer ingående undersökning från köparens sida. Köparen bör slutligen tänka på att säljaren inte svarar för fel och brister som köparen borde ha räknat med eller borde ha förväntat sig med hänsyn till ålder, skick och förväntad ”livslängd”.
Köparens skyldighet att undersöka omfattar inte enbart bostadsrätten utan även förhållanden kring bostadsrättsföreningen bör granskas, t.ex. om föreningen ska genomföra större renoveringar, höja sina avgifter eller liknande. En kontakt med företrädare för föreningen bör därför ingå i köparens undersökning, liksom genomgång av stadgarna och senaste årsredovisningen.
Uppgift om bostadens yta härstammar vanligtvis från mätbevis eller föreningens lägenhetsregister. Uppgiven yta kan inte ses som en utfästelse eller garanti. I våra överlåtelseavtal friskriver sig säljaren från allt ansvar för eventuella fel eller brister vad avser ytan och köparen avstår med bindande verkan från alla anspråk mot säljaren vad gäller lägenhetens yta.
Mer information gällande bland annat undersökningsplikt finns att tillgå i dokumentet:
”Undersökningsplikt”
BOENDEKOSTNADSKALKYL | Fastighetsmäklaren erbjuder en individuell beräkning av era boendekostnader. Prata med ansvarig mäklare om beräkning önskas.
BUDGIVNING | Säljaren har fri prövningsrätt vilket innebär att säljaren bestämmer till vem hen vill sälja, när och till vilket pris. Säljaren bestämmer hur budgivningen ska gå till och hur den ska avslutas. Det innebär att säljaren inte nödvändigtvis behöver sälja till den som lämnat det högsta budet eller sälja alls. Mäklaren har en skyldighet att vidarebefordra samtliga bud till sin uppdragsgivare och föra en budförteckning över alla bud. Först när både säljaren och köparen har undertecknat ett köpekontrakt för bostaden blir köpet bindande.
Budförteckning överlämnas till köpare och säljare när mäklarens uppdrag är avslutat, normalt vid tillträdet.
MÄKLARENS ANSVAR | Mäklaren är skyldig att verka som en opartisk mellanhand mellan köpare och säljare. Mäklaren ska verka för att säljaren lämnar köparen de uppgifter som är av betydelse för hen samt verka för att köparen före köpet undersöker bostadsrätten. Mäklaren har normalt inte ansvar för att kontrollera om säljarens uppgifter är korrekta.
För ytterligare information, besök Fastighetsmäklarinspektionens hemsida:
http://www.fmi.se/konsument
SIDOTJÄNSTER | Mäklaren är, enligt Fastighetsmäklarlagen, skyldig att informera om sina eventuella sidotjänster där mäklaren/företaget får ersättning/provision. Franzon Du Rietz erhåller administrationsersättning, upp till 50% av uppdragsgivarens kostnad för annons på Hemnet.
